Introduction
Richard Huish College, a member of Richard Huish Trust, is seeking feedback on a proposed extension and refurbishment of one of its existing buildings that will address our ongoing increase in 16-19 student numbers.
Background
We are an outstanding provider of post-16 education, ranked within the top 10% of sixth forms nationally. Students who progress onto university outperform their peers from both the state and independent sectors.
We have been growing steadily over the past few years, in line with the local demography and because of our students’ exceptional results.
We have accommodated over 200 additional students in the last three years by converting office and backroom service spaces into classrooms and places for students to study independently.
With further increases in applications for 2026-27, we have now reached a point where we have few if any places left to convert and will struggle to accommodate the demand we are experiencing.
The number of young people leaving our feeder secondary schools will continue to grow until at least 2028 and is likely to continue beyond that if local housing plans come to fruition.
This means that to ensure we continue to provide a place for all students that want to join us, we need to increase our general classroom space.
We do not want to become a selective college where we turn students away. We know that high quality post-16 education can be life changing for many young people and are fully committed to retaining and want to ensure that we can provide this provision for as many students as possible going forwards.
The proposed development
We have recently completed a campus ‘master planning’ exercise from which a number of development options have been identified. Some options will take longer to develop than others and may ultimately prove to be cost-prohibitive.
We have prioritised the development of what is currently Pine Studios.
We will generate 6 new classroom spaces by the construction of a mezzanine floor and some small extensions to the existing footprint.
The existing dance and drama studios will be retained; a new single storey strength and condition gym will be constructed to the rear freeing up the existing gym to become a new large classroom.
The design of the building will incorporate carbon reduction technologies that are most appropriate for a building of this type and design. Huish is committed to operating sustainably.
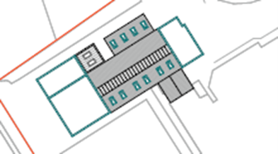
The images show the existing building footprint with the extensions to the front and rear together with the proposed new front elevation.

Invitation for your feedback
These are exciting times for our college. We are asking for your support to help us continue to provide a place for all students who wish to study post-16 at Huish.
Please support us by completing the consultation questionnaire, it should take you no more than a couple of minutes to complete.
The consultation starts on 24th March 2026 and ends on 14th April 2026.
Complete the feedback survey
If you have any questions please contact rhcexpansion@richuish.ac.uk.